Construction Documents of the Patscenter

Construction Documents

Architecturals


Site Plan, Drawing A10

Site Plan

Site Plan
Full Document: 400K JPEG

Site Plan
Full Document: 300K TIF, LZW compressed


Longitudinal Sections, Drawing A15

Section AA
Drawing A15-AA

Longitudinal Sections
Full Document: 320K JPEG

Roof Framing Plan
Full Document: 450K TIFF, LZW compressed


Cross Sections, Drawing A16

Cross Section
Drawing A16-AA

Cross Sections
Full Document: 190K JPEG

Cross Sections
Full Document: 270K TIFF, LZW compressed


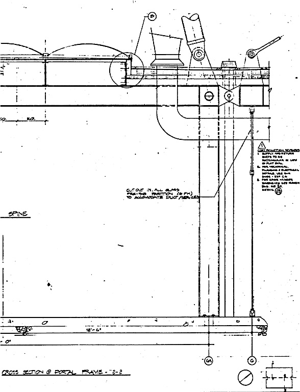
Enlarged Partial Section, Drawing A23

Cross Section at Portal Frame
Drawing A23-2-2

Skylight Curb at Grid Lines
Drawing A23-B

Enlarged Partial Section
Full Document: 250K JPEG

Enlarged Partial Section
Full Document: 340K TIFF, LZW compressed


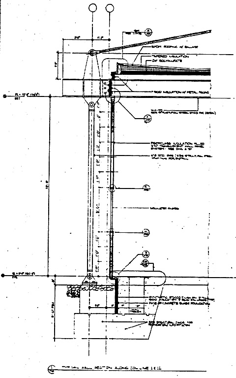
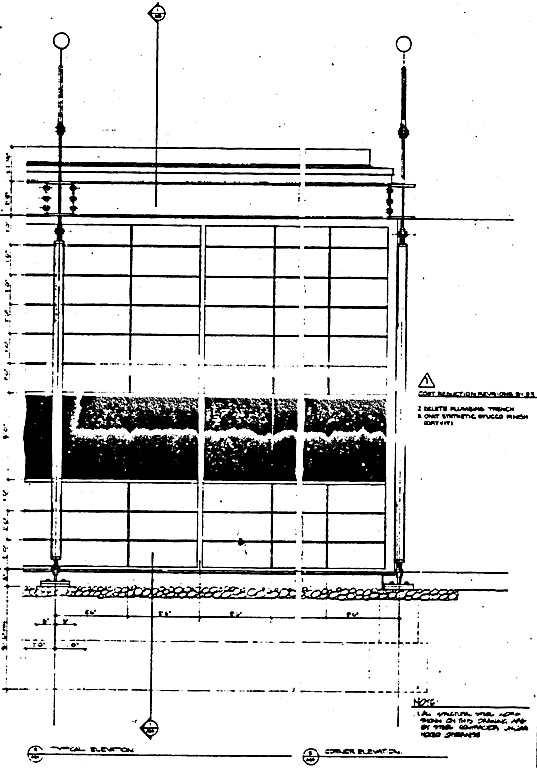
Enlarged Partial Sections and Elevation, Drawing A24

Typical Wall Section Along Col. Line 1 and 12
Drawing A24-1

Typical Elevation
Drawing A24-4
Enlarged Partial Sections and Elevation
Full Document: 200K JPEG

Enlarged Partial Sections and Elevation
Full Document: 315K TIFF, LZW compressed

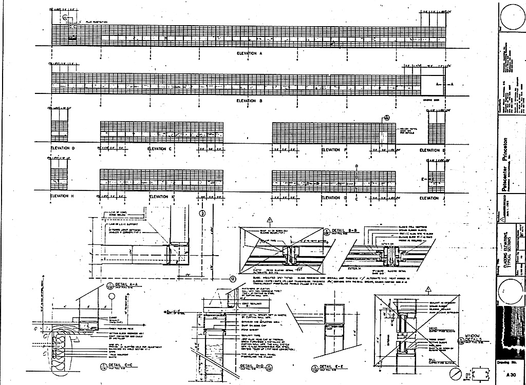
Cladding Elevations, Typical Sections, Drawing A30

Detail B-B
Drawing A30-2, Standard Glazing Detail, Base Bid

Detail C-C
Drawing A30-3, Detail at Bottom of Curtain Wall

Detail D-D
Drawing A30-4, Detail at Top of Curtain Wall
Cladding Elevations, Typical Sections
Full Document: 332K JPEG

Cladding Elevations, Typical Sections
Full Document: 425K TIFF, LZW compressed


To the next page of Construction Documents


Back to The PatCenter Main Menu