Construction Documents of the Patscenter

Construction Documents

Structruals


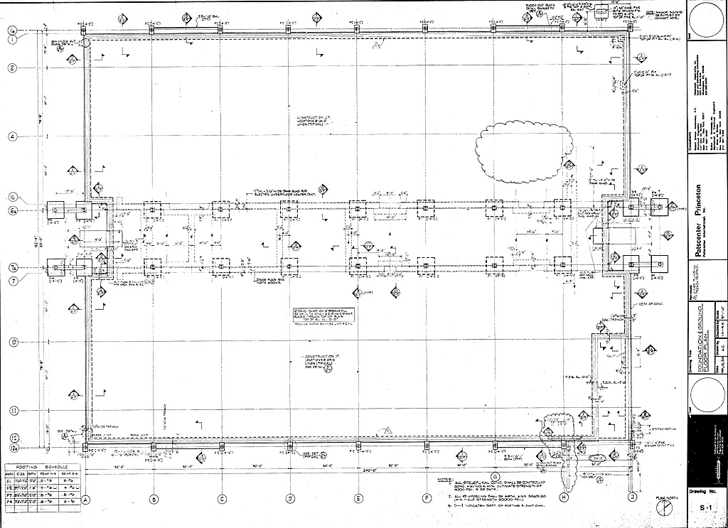
Foundation and Ground Floor Plan, Drawing S1

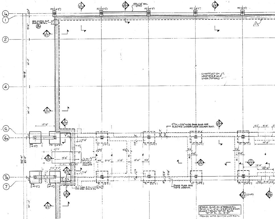
Detail of Floor Plan
typical detail

Foundation and Ground Floor Plan
Full Document: S1
1.5M JPEG

Foundation and Ground Floor Plan
Full Document: S1
1M TIF, LZW compressed


Roof Framing Plan, Drawing S2

Detail of Roof Framing Plan typical detail

Roof Framing Plan
Full Document: 1M JPEG

Roof Framing Plan
Full Document: 1M TIFF, LZW compressed


Sections, Drawing S3

Cross Section
Drawing S3-1

Typical Longitudinal Section
Drawing S3-2

Sections
Full Document: 1M JPEG

Section
Full Document: 1M TIFF, LZW compressed


Longitudinal Section Thru Spine & Service Platform Plan, Drawing S4

Logitudinal Section Thru Spine
Drawing S4-1

Section
Drawing S4-2, clear span joists at spine

Section
Drawing S4-3, cross section of clear span joists at spine

Longitudinal Section Thru Spine & Service Platform Plan
Full Document: 1M JPEG

Longitudinal Section Thru Spine & Service Platform Plan
Full Document: 1M TIFF, LZW compressed


Sections, Drawing S5

Detail (typical)
Drawing S5-A, detail at clevice

Detail
Drawing S5-b, detail at clevice

Detail
Drawing S5-E, detail at side ring

Detail
Drawing S5-F, detail at top ring

Section
Drawing S5-4, section through clevice

Section
Drawing S5-5, section through clevice

Section
Drawing S5-4, section through flange

Detail
Drawing S5-G, section at beam

Section
Drawing S5-9, section at exterior beam

Sections
Full Document: 1M JPEG

Sections
Full Document: 1M TIFF, LZW compressed


To the next page of Construction Documents


Back to The PatCenter Main Menu