Brief History of Framed and Walled Structures 
-   
  Skeleton Frame 
Construction Video
 -    
 112 Prince Street - Cast Iron Building
 -    
 435 Broome Street - Cast Iron Building
 -    
 Borden Building, Columbus, Ohio - Steel Building
 -    
 Bourges Cathedral, France - Nave, Vault
 -    
 Bourges Cathedral - Plan
 -    
 S.O.M., F.Kahn, Brunswick Building, Chicago
 -    
 Brunswick Building - Plan
 -    
 Column - Cast Iron Structure
 -    
 Elevator, 'Holeless' System - Axonometric and Plan
 -    
 Fair Store, Chicago - Steel Frame Axonometric
 -    
 Havermeyer Building, New York
 -    
 Hingham Ferrers, Northamptonshire
 -    
 Home Insurance Building - Detail of Column
 -    
 John Hancock Center, Chicago
 -    
 Edward Laing Store, New York - Cast Iron Building
 -    
 Larkin R/S/T Warehouse, Buffalo - External View
 -    
 Larkin R/S/T Warehouse - Interanl View
 -    
 Skeleton Frame - Basic Structure Diagram
 -    
 Leiter Stores, Chicago
 -    
 Medieval Architecture - Frame and Infill
 -    
 Merrimack Manufacturing Co.
 -    
 D.Burnham, Monadnok Block, Chicago - Storefront
 -    
 Monadnok Block - Facade
 -    
 
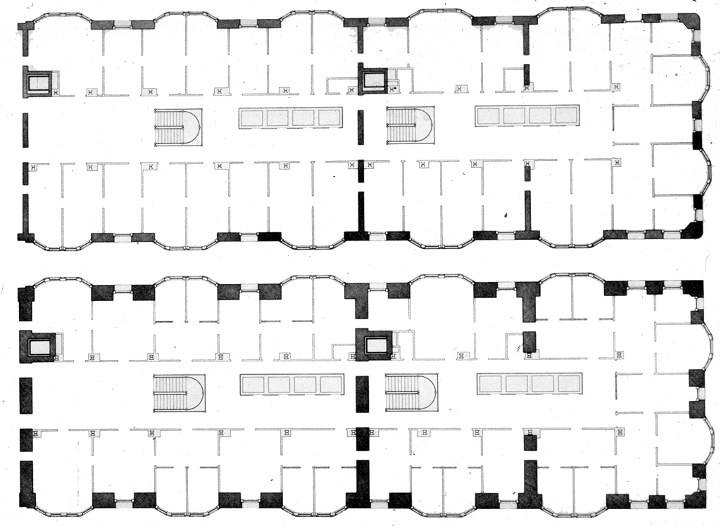
Monadnok Block - Typical Floor Plans
 -    
 Reinforced Concrete - Hennebique System
 -    
 D.Burnham, Reliance Building, Chicago
 -    
 Reliance Building - Plan
 -    
 L.Kahn, Richards Labs, U.Penn., Philadelphia - Isometric Framing Diagram
 -    
 Richards Labs - Construction View
 -    
 Richards Labs - Towers and Stacks from North
 -    
 Richards Labs - Construction View
 -    
 Richards Labs - Precast Concrete Frame
 -    
 Skeleton Frame - Construction View
 -    
 Skeleton Frame - Skyscaper Construction, Framing
 -    
 Skeleton Frame - Reinforced Concrete with Steel Flanges
 -    
 Skeleton Frame - W14 Steel Column Insubstructure
 
 Building
Systems I Lecture Materials Menu